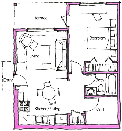
1 Bedroom Plans 1 BEDROOM UNITS | 2 BEDROOM UNITS | COMMON HOUSE 1 BEDROOM FIRST FLOOR 1 BEDRM SECOND FLOOR Share this: Share on X (Opens in new window) X Share on Facebook (Opens in new window) Facebook Like Loading...